Location
Ayvalık, Balıkesir
Client
Kırca Yapı - Ali Sözgeç - Işıl Su Acar
Built Area
3.210 m²
Date
2020-2022
Type
Residential
Status
Completed

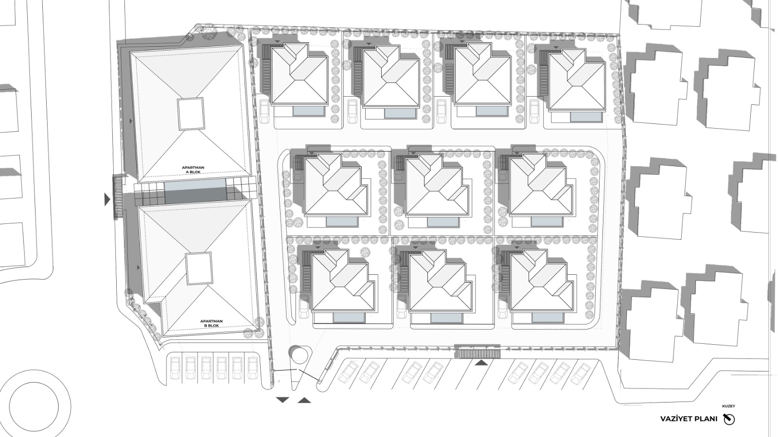
Ayvalık Güzelbahçe Houses are located on a 4.425 m² land 100 meters from the sea in Ayvalık Küçükköy. When we look at the overall project area, an effort was made to benefit from the views of Lesbos Island and Sarımsaklı coast at the highest level in the settlement of 2 blocks of apartments consisting of a total of 24 flats on a land of 1268 m² on 307 block, 25 parcel. There are 1+1 50 m² garden-use flats on the ground floors, and 2+1 75 m² flats with balconies on the upper floors. The 10 villas with 300 m² land shares on 307 Block 24 Parcel of 3157 m², where the villas are located, have been designed by considering privacy and neighborhood relations. The living areas of each villa overlook the closed facades of the other villa with the staircase buckets detached from the facades. Therefore, villa planning is designed in this principle. It is aimed to preserve the breathtaking beauty of the sea and the olive trees of the lush green nature and to further reveal the natural texture. By respecting the local architectural attitude and nature, in an architectural discource that responds to the land without disturbing the basic qualities such as the nature of the region, topography, type and location of vegetation, and prefers to reuse these qualities, prioritizing data such as climate quality, sun direction, effective winds, the principle of simplicity and the main approach of the project is to solve the problem in a way that responds to a series of operation schemes within the framework of design decisions supported by the use of local building materials.The terrain has shaped the use of common and detached units and social areas, which are the components of the program. The focus of the design, which develops as a balanced mix of semi-open and open areas that provides controlled air conditioning and breeze in the units on hot summer days, provides protection from the direct effect of the sun and at the same time makes effective use of daylight, is to integrate with nature. Design strategies and approaches that respect the spirit of the place, layout, gaps, transitions and connections, open spaces and spatial relationships create a living space within the framework of these ideas. Within this scheme that will allow for flexible uses; in terms of scale, architectural design and materials, it is envisioned to be shaped as a human scale project inspired by local architecture and Aegean life, open to current and contemporary uses and users. Strengthening the natural landscape with documented and protected trees and the use of plants from the local flora; Differentiation is provided by the original use of a small number of materials on different surfaces with different textures, combinations and measures, without diversity in material selection in the non-intensive structuring.